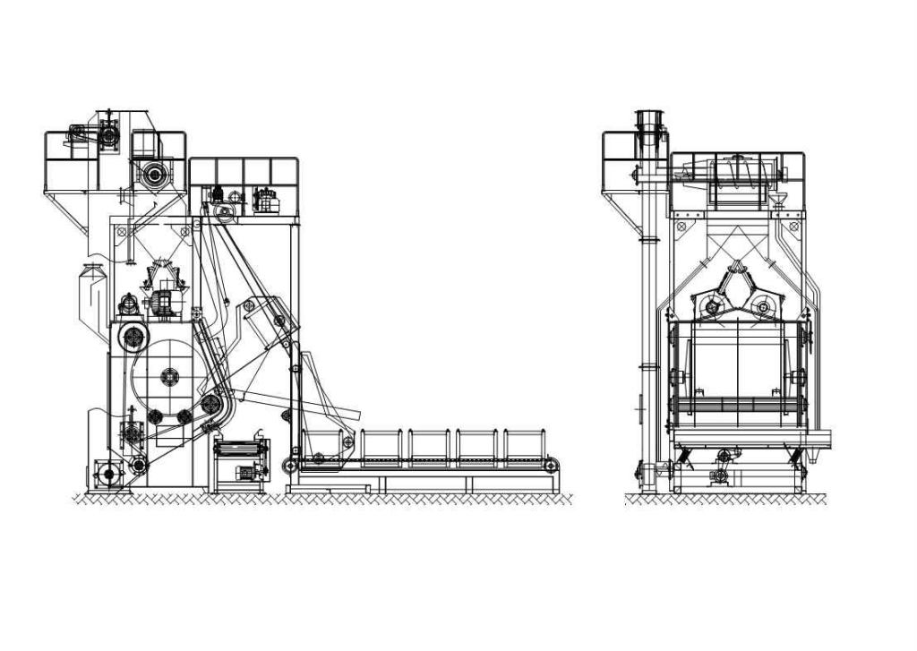
APRON SHOT BLAST M/C
제품 개요
APRON SHOT BLAST M/C는
중량물 및 다양한 형상의 제품을 연속적으로 처리할 수 있도록 설계된
산업용 쇼트블라스트 설비입니다.
APRON(슬랫) 컨베이어 방식을 적용하여
제품의 투입 및 이송이 용이하며,
자동 개폐 도어 시스템을 통해 작업 효율성과 안전성을 동시에 확보할 수 있습니다.
일반 고무벨트 컨베이어 대비 마모 및 손상에 강한 구조로,
대형·중량 제품의 표면 처리에 적합한 설비입니다.
주요 특징
- 중량물 및 다양한 형상 제품 처리 가능
- APRON(SLAT) CONVEYOR 방식 적용
- 자동 도어 오퍼레이터(AUTO DOOR) 시스템
- 연속 작업이 가능한 고효율 구조
- 균일한 쇼트 분사로 표면 품질 향상
- 작업 환경에 따른 맞춤 제작 가능
적용 대상
- 주조품 및 단조품 표면 처리
- 중량 구조물 및 대형 부품
- 용접 전·후 표면 클리닝
- 산업용 금속 부품 탈스케일링
주요 사양
| 구분 | HDA-300 | HDA-500 | HDA-1000 |
|---|---|---|---|
| ROOM SIZE | Ø700 × 850L | Ø900 × 1000L | Ø900 × 1400L |
| DOOR OPERATOR | AUTO | AUTO | AUTO |
| IMPELLER UNIT | Ø360 x 62w | Ø400 x 74w | Ø400 x 74w |
| IMPELLER MOTOR | 10HP × 1EA | 15HP × 1EA | 15HP × 2EA |
| 처리능력 | 120kg/min | 180kg/min | 360kg/min |
| 제품 처리 중량 | 0.14㎡ / 300kg | 0.28㎡ / 500kg | 0.40㎡ / 1000kg |
| 기계의 최소높이 | 3400L | 4500L | 5400L |
설비 도면
