BAG FILTER & CARTRIDGE AIR PULSE TYPE DUST COLLECTOR

에어 펄스 타입 집진기

BAG FILTER & CARTRIDGE AIR PULSE TYPE DUST COLLECTOR

AIR PULSE TYPE DUST COLLECTOR AIR PULSE TYPE DUST COLLECTOR

제품 개요

AIR PULSE TYPE DUST COLLECTOR는
쇼트블라스트 설비 및 각종 산업 공정에서 발생하는 분진을
효율적으로 포집·제거하기 위한 고성능 산업용 집진 설비입니다.

에어 펄스(AIR PULSE JET) 방식의 자동 탈진 시스템을 적용하여
연속 운전 중에도 안정적인 집진 성능을 유지하며,
높은 집진 효율과 비교적 낮은 유지관리 비용으로
쇼트블라스트 설비에 가장 널리 사용되는 집진기 타입입니다.

주요 특징

  • 에어 펄스(AIR PULSE JET) 방식 자동 탈진 시스템
  • 연속 운전 중 안정적인 집진 성능 유지
  • 고효율 필터 적용으로 미세 분진 포집 가능
  • 자동 제어 시스템에 의한 분진 배출
  • 유지보수 용이 및 운전 비용 절감
  • 대형 쇼트블라스트 설비와 연계 가능
  • 작업 환경 및 설비 규모에 따른 맞춤 제작 가능

성능 및 특성

  • 일반적인 건식 집진 방식 중 가장 널리 사용되는 타입
  • 분진 처리 효율 우수 및 장시간 운전 적합
  • 집진 효율 약 99% 이상
  • 분진 처리 가능 풍량 범위: 3㎥/min 이상
  • 쇼트블라스트 설비, 에어 쇼트 설비 등 다양한 공정에 적용 가능

적용 분야

  • SHOT BLAST M/C 집진 시스템
  • AIR SHOT BLAST 설비 집진
  • 금속 가공 및 표면 처리 공정
  • 산업 현장 분진 제거 및 작업 환경 개선

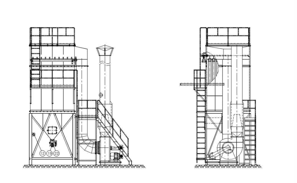
설비 도면

산업 설비 제작에 대한 상담을 받아보세요

현장 조건과 목적에 맞는 설비를
SH산업기계가 직접 검토하고 제안드립니다.