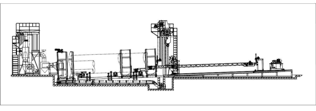
PIPE INTERNAL DESCALING SHOT M/C


제품 개요
PIPE INTERNAL DESCALING SHOT BLAST M/C는
강관(Pipe) 내부(내면)의 스케일, 녹, 이물질을 제거하기 위해 설계된 산업용 쇼트블라스트 설비입니다.
롤러 컨베이어에 의해 이송된 파이프가 설비 내부로 진입하면,
INTERNAL BLAST BOOM이 파이프 내부로 삽입되어 내면 전체에 균일한 쇼트 분사를 수행합니다.
이를 통해 파이프 내면의 탈스케일링 및 표면 품질을 효과적으로 향상 시킵니다.
주요 특징
- 파이프 내면 전용 쇼트블라스트 설비
- 롤러 컨베이어 방식의 안정적인 파이프 이송
- INTERNAL BLAST BOOM 구조 적용
- 파이프 내면 전체에 균일한 쇼트 분사
- 고출력 임펠러 유닛 적용
- 파이프 직경 및 생산 조건에 따른 맞춤 제작 가능
적용 대상
- 강관(Pipe) 내면 스케일 제거
- 고압 배관 및 산업용 파이프 내부 처리
- 도장 및 코팅 전 내면 표면 처리
- 플랜트, 배관, 구조용 파이프 내면 클리닝
주요 사양
| 구분 및 형식 | HDPO-30 | HDPO-70 | HDPO-150 |
|---|---|---|---|
| PIPE 최대크기 | Ø300~Ø600 | Ø700~Ø1500 | Ø1500~Ø3000 |
| IMPELLER UNIT | Ø240 x 34w | Ø420 x 74w | Ø490 x 85w |
| IMPELLER MOTOR | 50HP | 75HP | 100HP |
| 처리면적 | 4㎡/min | 6.5㎡/min | 8.8㎡/min |
※ PIPE INTERNAL DESCALING SHOT BLAST M/C는 임펠러 모터 출력이 상대적으로 높게 적용되는 설비입니다.
※ 상기 사양은 표준 사양이며, 고객 요구 사항에 따라 변경 제작이 가능합니다.
설비 도면

PIPE EXTERNAL DESCALING SHOT M/C
제품 개요
PIPE OUT SIDE DESCALING SHOT BLAST M/C는
강관(Pipe) 외면의 스케일, 녹, 이물질 제거를 목적으로 설계된 산업용 쇼트블라스트 설비입니다.
롤러 컨베이어 방식으로 파이프를 이송하며,
고속 회전 임펠러를 통해 강력한 쇼트 분사로 균일하고 안정적인 표면처리가 가능합니다.
파이프 직경 및 생산 조건에 따라 사양 맞춤 제작이 가능합니다.
주요 특징
- 파이프 외면 전용 쇼트블라스트 설비
- 롤러 컨베이어 방식 적용
- 파이프 직경별 안정적인 이송 구조
- 고효율 임펠러 유닛 적용
- 균일한 표면 품질 확보
- 고객 요구 사양에 따른 맞춤 설계 가능
적용 대상
- 강관(Pipe) 외면 스케일 제거
- 도장 전 표면 처리
- 용접 전·후 표면 클리닝
- 산업용 배관 및 구조용 파이프 처리
주요 사양
| 구분 및 형식 | HDRP-30 | HDRP-70 | HDRP-150 |
|---|---|---|---|
| PIPE 최대크기 | Ø300~Ø600 | Ø700~Ø1500 | Ø1500~ |
| IMPELLER UNIT | Ø360 x 34w | Ø420 x 74w | Ø490 x 85w |
| IMPELLER MOTOR | 15HP X 2SET | 25HP X 2SET | 75HP X 2SET |
| 처리면적 | 3.2㎡/min | 5.5㎡/min | 16.5㎡/min |
설비 도면
