HOIST / T-RAIL HANGER SHOT BLAST M/C
제품 개요
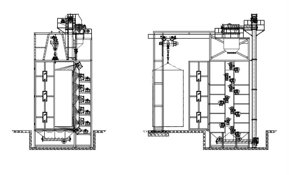
HOIST / T-RAIL HANGER SHOT BLAST M/C는
대형·중량 제품을 행거(Hanger)에 매달아 회전시키며 처리하는 방식의 산업용 쇼트블라스트 설비입니다.
호이스트 시스템을 통해 제품을 인양하여 작업 챔버 내부로 이동시키고,
작업 중 제품을 회전시켜 사각지대 없이 균일한 블라스팅이 가능합니다.
복잡한 형상이나 중량물이 많은 제품의 표면 처리에 최적화된 설비입니다.
주요 특징
- 행거 타입(HANGER TYPE) 쇼트블라스트 설비
- 호이스트(HOIST) 및 T-RAIL 시스템 적용
- 제품 회전 방식으로 사각지대 최소화
- 대형·중량 제품 처리에 최적
- 고효율 임펠러 유닛 적용
- 작업 조건 및 제품 중량에 따른 맞춤 제작 가능
적용 대상
- 대형 주조품 및 단조품
- 중량 구조물 및 플랜트 부품
- 복잡한 형상의 금속 제품
- 용접 전·후 표면 처리 및 도장 전 클리닝
주요 사양
| 구분 및 형식 | HDHC-10 | HDHC-12 | HDHC-15 | HDHC-18 | HDHC-25 |
|---|---|---|---|---|---|
| 피제청물의 최대크기 | Ø1000 x 1000L | Ø1200 x 1200L | Ø1500 x 1500L | Ø1800 x 1800L | Ø2500 x 2500L |
| IMPELLER UNIT | Ø360 x 62w | Ø360 x 62w | Ø400 x 74w | Ø400 x 74w | Ø400 x 74w |
| IMPELLER MOTOR | 10HP x 2EA | 10HP x 2EA | 15HP x 2EA | 15HP x 3EA | 20HP x 4EA |
| 최대투사량 | 240㎏/min | 240㎏/min | 360㎏/min | 540㎏/min | 960㎏/min |
| HOIST | 1 TON | 1.2 TON | 1.5 TON | 1.8 TON | 2.5 TON |
설비 도면
